Dessin industriel pour la RATP (Régie Autonome des Transports Parisiens)
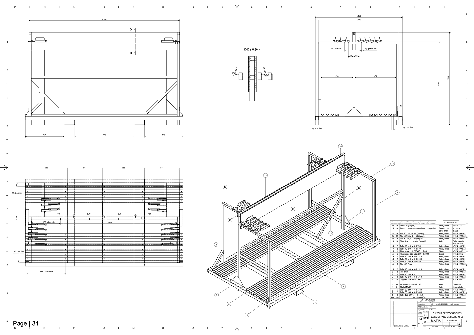
Lors de mon expérience au sein des bureaux techniques de la RATP, j’ai conçu deux agrès destinés à faciliter la maintenance des trains MF01. Le premier agrès permet le stockage sécurisé et ergonomique des portes du métro, tandis que le second est dédié aux pare-brise. Ces équipements, pensés pour alléger la charge des techniciens, optimisent les opérations de manutention en garantissant sécurité et efficacité lors des phases de chargement et déchargement des pièces lourdes.

Autres projets

Back to Top